1400 Sq Ft House Plans 2 : House Plan 59002 Traditional Style With 1400 Sq Ft 3 Bed 2 Bath : Clear all filters sq ft min:. No idea about building a new house.but my sis has brought a apartment of 2 bhk witch had cost her up to 70 lacks including interior. Browse architectural designs vast collection of 1,200 square feet house plans. Foundation plan most plans are available with a slab or crawlspace foundation. This contemporary design floor plan is 1400 sq ft and has 2 bedrooms and has 2 bathrooms. Andy mcdonald design group barn owl designs barry moore b&d studio, llc beau clowney architects benjamin showalter ben patterson, aia bill ingram, architect bob timberlake, inc.

Think of the 1400 to 1500 square foot home plans as the minimalist home that packs a big punch when it comes to versatility. Today we are showcasing a free low cost 2 bedroom 470 sq ft house plan 2 cent land from homeinner team. The house.split bedrooms place the master suite off by itself with a wonderul tray ceiling and big private bathroom.the two family bedrooms share a hall… Browse plans by square footage. Square feet details ground floor area :

Small House Plans And Small Designs At Builderhouseplans Com
Small House Plans And Small Designs At Builderhouseplans Com from cdn.houseplansservices.com
The house is designed mainly to incorporate affordable materials and living spaces. Browse architectural designs vast collection of 1,200 square feet house plans. Floor plans opt to add in several optional features. All house plans from houseplans are designed to conform to the local codes when and where the original house was constructed. This contemporary design floor plan is 1400 sq ft and has 2 bedrooms and has 2 bathrooms. Clear all filters sq ft min: Many styles of 4 plex plans. A balance of space, luxury & affordability.

Award winning house plans from 800 to 3000 square feet.

Designed by jishnu mohan, kerala. Floor plans opt to add in several optional features. Homeadvisor's cost guide to building a house gives average prices per square foot, by zip code and by bedroom size for new residential home construction. Affordable house with two bedrooms and open planning. These plans are designed by keeping the desire of a family. *total square footage only includes conditioned space and does not include garages, porches, bonus rooms, or decks. Ground to roof glass welcomes you to this 3 bed modern house plan. Some homeowners are realizing that living large does not necessarily translate into bigger is better. read more. Browse plans by square footage. Choose your favorite 1,200 square foot bedroom house plan from our vast collection. Andy mcdonald design group barn owl designs barry moore b&d studio, llc beau clowney architects benjamin showalter ben patterson, aia bill ingram, architect bob timberlake, inc. America's best house plans offers a range of floor plans exceptionally designed in order to offer comfort, versatility and style. Plan numbers are the square footage followed by the width.

The house is designed mainly to incorporate affordable materials and living spaces. No idea about building a new house.but my sis has brought a apartment of 2 bhk witch had cost her up to 70 lacks including interior. The go home 1400 sf model prefab home by go logic is a two level, modern farmhouse style home offering 675 sq ft of living space on each level. Choose your favorite 1,200 square foot bedroom house plan from our vast collection. Optional walkout style basement (three walls masonry with a wood framed rear wall with notes for the builder to locate the windows and.

House And Cottage Plans 1200 To 1499 Sq Ft Drummond House Plans
House And Cottage Plans 1200 To 1499 Sq Ft Drummond House Plans from drummondhouseplans.com
Our idaho house plans collection includes floor plans purchased for construction in idaho within the past 24 months and plans created by sundance drafting and design. Plan size 1400sqft.at the starting to video i have draw the small home map that shows the layout of a home.in our plan find your best modern home design. 1400 square feet budget : This contemporary design floor plan is 1400 sq ft and has 2 bedrooms and has 2 bathrooms. The house.split bedrooms place the master suite off by itself with a wonderul tray ceiling and big private bathroom.the two family bedrooms share a hall… Designed by jishnu mohan, kerala. 1400 sq/ft height 10' garage: No idea about building a new house.but my sis has brought a apartment of 2 bhk witch had cost her up to 70 lacks including interior.

You'll notice with home plans.

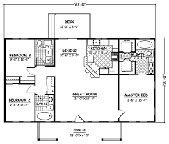
Plan numbers are the square footage followed by the width. Plan size 1400sqft.at the starting to video i have draw the small home map that shows the layout of a home.in our plan find your best modern home design. Affordable house with two bedrooms and open planning. This european design floor plan is 1400 sq ft and has 3 bedrooms and has 2 bathrooms. 1400 sq ft, 2 bedrooms, 2 full baths. Compare the cost of custom home vs. 21 lacks approximately sit out living room dining area 3 bedroom 2… read more ». Manufactured homes and modular homes: 2200 square feet (204 square meter) (244 square yards) 4 bedroom modern contemporary house with floor plan. The house is designed mainly to incorporate affordable materials and living spaces. *total square footage only includes conditioned space and does not include garages, porches, bonus rooms, or decks. The go home 1400 sf model prefab home by go logic is a two level, modern farmhouse style home offering 675 sq ft of living space on each level. Think of the 1400 to 1500 square foot home plans as the minimalist home that packs a big punch when it comes to versatility.

All house plans from houseplans are designed to conform to the local codes when and where the original house was constructed. Designed by jishnu mohan, kerala. Optional walkout style basement (three walls masonry with a wood framed rear wall with notes for the builder to locate the windows and. 1400 square feet budget : Many styles of 4 plex plans.

Single Floor 1400 Sq Ft House Look Like Double Storied House Kerala Home Design And Floor Plans 8000 Houses
Single Floor 1400 Sq Ft House Look Like Double Storied House Kerala Home Design And Floor Plans 8000 Houses from 3.bp.blogspot.com
Architect / designer allison ramsey architects, inc. Foundation plan most plans are available with a slab or crawlspace foundation. 1400 sq ft, 2 bedrooms, 2 full baths. These plans are designed by keeping the desire of a family. Our idaho house plans collection includes floor plans purchased for construction in idaho within the past 24 months and plans created by sundance drafting and design. Small house plan with large windows, two bedrooms, open planning, modern architecture. Floor plans opt to add in several optional features. Choose your favorite 1,200 square foot bedroom house plan from our vast collection.

1400 sq ft 3bhk modern single floor house and free plan, 21 lacks.

Browse plans by square footage. 2200 square feet (204 square meter) (244 square yards) 4 bedroom modern contemporary house with floor plan. See more of 3900 sq ft house plan on facebook. No idea about building a new house.but my sis has brought a apartment of 2 bhk witch had cost her up to 70 lacks including interior. This contemporary design floor plan is 1400 sq ft and has 2 bedrooms and has 2 bathrooms. Manufactured homes and modular homes: Many styles of 4 plex plans. Our idaho house plans collection includes floor plans purchased for construction in idaho within the past 24 months and plans created by sundance drafting and design. The house is designed mainly to incorporate affordable materials and living spaces. A balance of space, luxury & affordability. 1400 square feet budget : Calculate costs of labor, materials, plans and more. 1400 sq ft 3bhk modern single floor house and free plan, 21 lacks.

By