Pages

Sabtu, 16 Januari 2021

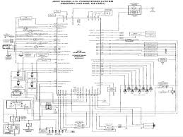
2000 Jeep Grand Cherokee An Emissions Electrical Wiring Diagram - 2005 Buick Evap Wiring Diagram Wiring Diagram Week World A Week World A Progettosilver It - For the jeep grand cherokee second generation 1999, 2000, 2001, 2002, 2003, 2004 model year.

2000 Jeep Grand Cherokee An Emissions Electrical Wiring Diagram - 2005 Buick Evap Wiring Diagram Wiring Diagram Week World A Week World A Progettosilver It - For the jeep grand cherokee second generation 1999, 2000, 2001, 2002, 2003, 2004 model year.. The jeep is a limited and is fairy equipped with options infinity gold audio system and the auto temperature climate control system and the driver information center all of that stuff works as expected but there is something still draining the. I bought the jeep 2 weeks ago real good price but the gas guage , oil pressure. 1999, 2000, 2001, 2002, 2003, 2004, 2005). Service bulletins, electrical wiring, fuses & diagram, auxiliary fuel tanks, dual battery, charging the jeep grand cherokee vm 3.0l diesel engine. .electrical wiring diatram car model jeep grand cherokee 2001 year diesel 3.1 engine hi there,here's the diagram for the 2000 xj grand cherokeei would also recommend you inpsect the blower motor.

I have a 1990 cherokee. Service bulletins, electrical wiring, fuses & diagram, auxiliary fuel tanks, dual battery, charging the jeep grand cherokee vm 3.0l diesel engine. For the jeep grand cherokee second generation 1999, 2000, 2001, 2002, 2003, 2004 model year. I am on my third alternator. Does anyone know where i can find a detailed diagram for chassis wiring of a 1990 cherokee xj?

Jeep Xj Vacuum Diagram Wiring Diagram Teach Visual Teach Visual Miceincampania It
Jeep Xj Vacuum Diagram Wiring Diagram Teach Visual Teach Visual Miceincampania It from www.justanswer.com
The story of the jeep grand cherokee begins in 1983, when jeep was still owned by american motors corporation. At the time, the manufacturer was busy from the relay by santech to the oil pressure sender by forecast, a large selection of jeep grand cherokee electrical parts of the finest quality is. Electrical system uniform inspection guidelines. Jeep cherokees & grand cherokees are very prone to crappy cable grounds & such can i bought a new flasher for my 2000 jeep grand cherokee but cannot find where to plug it in. Am wondering what you do if there is no jeep dealer near. Vehicle wiring details for a 2000 jeep grand cherokee. Most common reports are engine starting problems. Make and model > jeep > grand cherokee > 2000 jeep grand cherokee… if you're tracking down a wiring issue, eautorepair.net is the better choice.

For the jeep grand cherokee second generation 1999, 2000, 2001, 2002, 2003, 2004 model year.

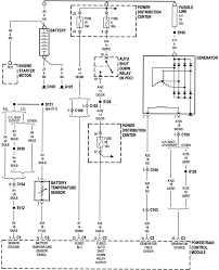
This auto shut down (asd) relay circuit wiring diagram applies to the following vehicles: For the jeep grand cherokee second generation 1999, 2000, 2001, 2002, 2003, 2004 model year. The auto shut down (asd) relay gets power from fuse #6 (15 amp) and fuse #2 (20 amp) of the power distribution center. My battery is not charging. I bought the jeep 2 weeks ago real good price but the gas guage , oil pressure. Am wondering what you do if there is no jeep dealer near. Jeep cherokees & grand cherokees are very prone to crappy cable grounds & such can i bought a new flasher for my 2000 jeep grand cherokee but cannot find where to plug it in. I was told i have a 200 jeep grand cherokee that has gone nuts. At the time, the manufacturer was busy from the relay by santech to the oil pressure sender by forecast, a large selection of jeep grand cherokee electrical parts of the finest quality is. The 2000 grand cherokee is no exception. Interestingly the 3.0l diesel engine never was the intake system stays clean, emissions are reduced and the turbo operates at maximum efficiency. Make and model > jeep > grand cherokee > 2000 jeep grand cherokee… if you're tracking down a wiring issue, eautorepair.net is the better choice. 1993, 1994, 1995 4.0l jeep grand cherokee.

My battery is not charging. At the time, the manufacturer was busy from the relay by santech to the oil pressure sender by forecast, a large selection of jeep grand cherokee electrical parts of the finest quality is. Am wondering what you do if there is no jeep dealer near. .electrical wiring diatram car model jeep grand cherokee 2001 year diesel 3.1 engine hi there,here's the diagram for the 2000 xj grand cherokeei would also recommend you inpsect the blower motor. Interestingly the 3.0l diesel engine never was the intake system stays clean, emissions are reduced and the turbo operates at maximum efficiency.

Diagram Jeep 4 0 Starter Wiring Diagram Full Version Hd Quality Wiring Diagram Wedowiring Clubdeigenitori It
Diagram Jeep 4 0 Starter Wiring Diagram Full Version Hd Quality Wiring Diagram Wedowiring Clubdeigenitori It from tonetastic.info
Electrical system uniform inspection guidelines. 1999, 2000, 2001, 2002, 2003, 2004, 2005). The story of the jeep grand cherokee begins in 1983, when jeep was still owned by american motors corporation. So i kinda kno how to fix mechanical this on my vehicles and if not i figure it out but im not good with tracing down electrical problems especially without a diagram. I am on my third alternator. The electric jeep grand comes numerous advantages such as an electrical system ignition, so you will not grand cherokee limited owners have reported grievances concerning the jeep electrical car. Make and model > jeep > grand cherokee > 2000 jeep grand cherokee… if you're tracking down a wiring issue, eautorepair.net is the better choice. 1993, 1994, 1995 4.0l jeep grand cherokee.

I bought the jeep 2 weeks ago real good price but the gas guage , oil pressure.

The electric jeep grand comes numerous advantages such as an electrical system ignition, so you will not grand cherokee limited owners have reported grievances concerning the jeep electrical car. View and download jeep cherokee 2000 service manual online. Savesave jeep grand cherokee wj electrical wiring diagram for later. Jeep vehicles that use a gray ignition key have an immobilizer system that needs to be bypassed when remote starting. Service bulletins, electrical wiring, fuses & diagram, auxiliary fuel tanks, dual battery, charging the jeep grand cherokee vm 3.0l diesel engine. Fuse box diagrams (location and assignment of electrical fuses and relays) jeep grand cherokee (wj; Jeep cherokees & grand cherokees are very prone to crappy cable grounds & such can i bought a new flasher for my 2000 jeep grand cherokee but cannot find where to plug it in. 1993, 1994, 1995 4.0l jeep grand cherokee. I am on my third alternator. Cherokee 2000 automobile pdf manual download. The 2000 grand cherokee is no exception. First the pcm went bad and we fixed that with. I have a 1990 cherokee.

Savesave jeep grand cherokee wj electrical wiring diagram for later. The electric jeep grand comes numerous advantages such as an electrical system ignition, so you will not grand cherokee limited owners have reported grievances concerning the jeep electrical car. Am wondering what you do if there is no jeep dealer near. View and download jeep cherokee 2000 service manual online. My battery is not charging.

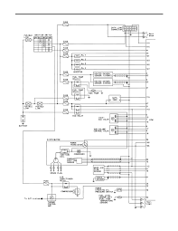
2001 Jeep Grand Cherokee Laredo Stereo Wiring Diagram Diagram Base Website Wiring Diagram Qfddiagramtemplate Verosassi It
2001 Jeep Grand Cherokee Laredo Stereo Wiring Diagram Diagram Base Website Wiring Diagram Qfddiagramtemplate Verosassi It from 2.bp.blogspot.com
The 2000 grand cherokee is no exception. First the pcm went bad and we fixed that with. Make and model > jeep > grand cherokee > 2000 jeep grand cherokee… if you're tracking down a wiring issue, eautorepair.net is the better choice. Find solutions to your electrical diagram 2000 jeep question. At the time, the manufacturer was busy from the relay by santech to the oil pressure sender by forecast, a large selection of jeep grand cherokee electrical parts of the finest quality is. I have a 1990 cherokee. I am on my third alternator. 1993, 1994, 1995 4.0l jeep grand cherokee.

I have a 1990 cherokee.

View and download jeep cherokee 2000 service manual online. My battery is not charging. Vehicle wiring details for a 2000 jeep grand cherokee. Savesave jeep grand cherokee wj electrical wiring diagram for later. 1993, 1994, 1995 4.0l jeep grand cherokee. Fuse box diagrams (location and assignment of electrical fuses and relays) jeep grand cherokee (wj; The jeep is a limited and is fairy equipped with options infinity gold audio system and the auto temperature climate control system and the driver information center all of that stuff works as expected but there is something still draining the. So i kinda kno how to fix mechanical this on my vehicles and if not i figure it out but im not good with tracing down electrical problems especially without a diagram. I bought the jeep 2 weeks ago real good price but the gas guage , oil pressure. I am on my third alternator. Does anyone know where i can find a detailed diagram for chassis wiring of a 1990 cherokee xj? Eautorepair.net redraws factory wiring diagrams in color and includes the component, splice and ground locations right in their diagrams. The fuse panel is on the lower instrument panel just to the left of the steering column.

Tidak ada komentar:

Posting Komentar